Bought a PET - Not working ^^
Re: Bought a PET - Not working ^^
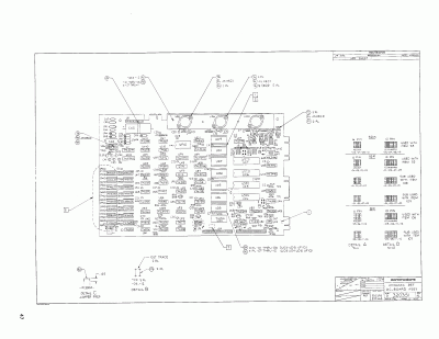
The schematic specifies a pair of LM340-5s to generate two separate regulated +5V supplies, a 7812 for the +12V regulator, and a 7905 for the -5V regulator. Of these, only the 7905 is actually present in your photo, next to the big silver 16V capacitor.
In place of the other three are a pair of LM323Ks for +5V regulation and an LM340-12 for the +12V. These are the big cans embedded in the black heatsink, which has a relatively new-looking sticker on it. It may be evidence of a repair already carried out, or merely substitution of equivalent parts during manufacture.
This should lead you to four voltages which can be tested.
In place of the other three are a pair of LM323Ks for +5V regulation and an LM340-12 for the +12V. These are the big cans embedded in the black heatsink, which has a relatively new-looking sticker on it. It may be evidence of a repair already carried out, or merely substitution of equivalent parts during manufacture.
This should lead you to four voltages which can be tested.
-
Commodore_PET
- Posts: 31
- Joined: 19 May 2020
- Location: Basel-Stadt, Switzerland
Re: Bought a PET - Not working ^^
So I have been able to measure the voltages on at the RAM chips, Ive found following Voltages present in following Pins:
Pin 1: -5.20 V
Pin 9: 4.95 V
Pin 8: 11.71V
Pin 16: Ground
I checked all ram chips and they all show the same voltages.
i wasnt able to take the reading off of the LM323K's that Chromatix pointed out, but the voltages were measured at other points in the board.
Having the machine on for the 15 or so minutes that it took me to make these readings i noticed the RAM chips were getting noticeably warm, so I checked all the other chips too and the ROM chips were getting very toasty so i turned the machine off again.
@Martin A: it might be a RAM upgrade, or probably is because the type of chip in the second memory bank is of the type NEC PD416 while the first memory bank has MK4116N chips. Did the RAM upgrade need any changes done to the board or could you just solder in new set?
Also, In my previous post i was posting some pictures asking if "this was normal". Comparing different pictures of PET 2001N boards, i think ive found some differences in at least on of the parts, labelled: SH1.
It has pins called A B C D E F. On all the pictures i find, the connections on A, B, and E seem cut, while the connections on C, D, and F seem untouched.
On my board, it is the following: A, B, D, and E are cut, while C, and F are connected.
sadly my board does not have the parts labelled so im attaching a picture where the board is clearly labelled.
Emmanuel
Pin 1: -5.20 V
Pin 9: 4.95 V
Pin 8: 11.71V
Pin 16: Ground
I checked all ram chips and they all show the same voltages.
i wasnt able to take the reading off of the LM323K's that Chromatix pointed out, but the voltages were measured at other points in the board.
Having the machine on for the 15 or so minutes that it took me to make these readings i noticed the RAM chips were getting noticeably warm, so I checked all the other chips too and the ROM chips were getting very toasty so i turned the machine off again.
@Martin A: it might be a RAM upgrade, or probably is because the type of chip in the second memory bank is of the type NEC PD416 while the first memory bank has MK4116N chips. Did the RAM upgrade need any changes done to the board or could you just solder in new set?
Also, In my previous post i was posting some pictures asking if "this was normal". Comparing different pictures of PET 2001N boards, i think ive found some differences in at least on of the parts, labelled: SH1.
It has pins called A B C D E F. On all the pictures i find, the connections on A, B, and E seem cut, while the connections on C, D, and F seem untouched.
On my board, it is the following: A, B, D, and E are cut, while C, and F are connected.
sadly my board does not have the parts labelled so im attaching a picture where the board is clearly labelled.
Emmanuel
Re: Bought a PET - Not working ^^
Okay, but the most significant diagnostic we haven't yet seen is whether the clock is running. My multimeter has a frequency and duty cycle setting, which is what I'd preferably use, but simply getting an AC voltage reading on the Phi0, Phi1 and Phi2 pins of the 6502 would be a start.
-
Commodore_PET
- Posts: 31
- Joined: 19 May 2020
- Location: Basel-Stadt, Switzerland
Re: Bought a PET - Not working ^^
So i found the Phi0, Phi1, and Phi,2 (i think)
Pin 37, is Phi0 at 1.67 V
Pin 3, is Phi1 at 2.35 V
Pin 39, is Phi2 at 2.3 V
Pin 1, is Ground
also my logic probe is on its way so i can find out about the clock soon enough
Emmanuel
Edit: I found an other great resource on zimmers.net about the DIP shunt settings so im thinking about replacing the two with DIP switches considering in how bad of a shape the one are that are inside.
Pin 37, is Phi0 at 1.67 V
Pin 3, is Phi1 at 2.35 V
Pin 39, is Phi2 at 2.3 V
Pin 1, is Ground
also my logic probe is on its way so i can find out about the clock soon enough
Emmanuel
Edit: I found an other great resource on zimmers.net about the DIP shunt settings so im thinking about replacing the two with DIP switches considering in how bad of a shape the one are that are inside.
- Attachments
Last edited by Commodore_PET on Sat May 23, 2020 2:34 pm, edited 2 times in total.
Re: Bought a PET - Not working ^^
See https://ist.uwaterloo.ca/~schepers/MJK/6502.html for example:
3 ø1 Phi1 out
37 ø0 Phi 0 in
39 ø2 Phi2 out
Personally I'd use ϕ not ø. Sometimes you might even see people use θ which is a different letter entirely...
3 ø1 Phi1 out
37 ø0 Phi 0 in
39 ø2 Phi2 out
Personally I'd use ϕ not ø. Sometimes you might even see people use θ which is a different letter entirely...
-
Commodore_PET
- Posts: 31
- Joined: 19 May 2020
- Location: Basel-Stadt, Switzerland
Re: Bought a PET - Not working ^^
BigEd wrote:
See https://ist.uwaterloo.ca/~schepers/MJK/6502.html for example:
3 ø1 Phi1 out
37 ø0 Phi 0 in
39 ø2 Phi2 out
Personally I'd use ϕ not ø. Sometimes you might even see people use θ which is a different letter entirely...
3 ø1 Phi1 out
37 ø0 Phi 0 in
39 ø2 Phi2 out
Personally I'd use ϕ not ø. Sometimes you might even see people use θ which is a different letter entirely...
Thank you for the quick reply, i did find it with a bit more applying myself. Im sorry im totally new to all of this kind of work.
Emmanuel
Re: Bought a PET - Not working ^^
Commodore_PET wrote:
So I have been able to measure the voltages on at the RAM chips, Ive found following Voltages present in following Pins:
Pin 1: -5.20 V
Pin 9: 4.95 V
Pin 8: 11.71V
Pin 16: Ground
Pin 1: -5.20 V
Pin 9: 4.95 V
Pin 8: 11.71V
Pin 16: Ground
Commodore_PET wrote:
Having the machine on for the 15 or so minutes that it took me to make these readings i noticed the RAM chips were getting noticeably warm, so I checked all the other chips too and the ROM chips were getting very toasty so i turned the machine off again.
I don’t have a PET, so don’t know about the type of ROM chips used. However, if you can’t touch one with your finger, even briefly because it is too hot, then it may be faulty.
Commodore_PET wrote:
@Martin A: it might be a RAM upgrade, or probably is because the type of chip in the second memory bank is of the type NEC PD416 while the first memory bank has MK4116N chips.
Using you multimeter on the 20V DC range (or equivalent), can you please test pin 40 (/RESET) on the 6502. Also pins 4 (/IRQ), 6 (/NMI) and 7 (Sync).
Mark
- BigDumbDinosaur
- Posts: 9425
- Joined: 28 May 2009
- Location: Midwestern USA (JB Pritzker’s dystopia)
- Contact:
Re: Bought a PET - Not working ^^
BigEd wrote:
See https://ist.uwaterloo.ca/~schepers/MJK/6502.html for example:
3 ø1 Phi1 out
37 ø0 Phi 0 in
39 ø2 Phi2 out
Personally I'd use ϕ not ø. Sometimes you might even see people use θ which is a different letter entirely...
3 ø1 Phi1 out
37 ø0 Phi 0 in
39 ø2 Phi2 out
Personally I'd use ϕ not ø. Sometimes you might even see people use θ which is a different letter entirely...
x86? We ain't got no x86. We don't NEED no stinking x86!
Re: Bought a PET - Not working ^^
Yikes, it's "fie" for me. A quick search yields
Quote:
The generally accepted pronunciation of phi is fi, like fly. Most people know phi as “fi,” to rhyme with fly, as its pronounced in “Phi Beta Kappa.”
-
Commodore_PET
- Posts: 31
- Joined: 19 May 2020
- Location: Basel-Stadt, Switzerland
Re: Bought a PET - Not working ^^
Hi Mark
So ive tested the voltages on the pins. I have the following readings:
Pin 40: 5.14 V
Pin 4: 0.12V
Pin 6: 5.13 V
Pin 7: 0.93 V
And touching the ROM is ok, its pretty warm but i could probably have my fingers on it indefinitely..
Emmanuel
1024MAK wrote:
Using you multimeter on the 20V DC range (or equivalent), can you please test pin 40 (/RESET) on the 6502. Also pins 4 (/IRQ), 6 (/NMI) and 7 (Sync).
Pin 40: 5.14 V
Pin 4: 0.12V
Pin 6: 5.13 V
Pin 7: 0.93 V
And touching the ROM is ok, its pretty warm but i could probably have my fingers on it indefinitely..
Emmanuel
- BigDumbDinosaur
- Posts: 9425
- Joined: 28 May 2009
- Location: Midwestern USA (JB Pritzker’s dystopia)
- Contact:
Re: Bought a PET - Not working ^^
BigEd wrote:
Yikes, it's "fie" for me. A quick search yields
Quote:
The generally accepted pronunciation of phi is fi, like fly. Most people know phi as “fi,” to rhyme with fly, as its pronounced in “Phi Beta Kappa.”
BTW, on Garth's site, he also says:
- "Φ" is pronounced "fee,"...
x86? We ain't got no x86. We don't NEED no stinking x86!
Re: Bought a PET - Not working ^^
Double yikes.
Re: Bought a PET - Not working ^^
My dictionary does suggest different pronunciations for British (fʌɪ) and American English (fï). International examples, however, follow the British example, except for the Modern Greek one.
- GARTHWILSON
- Forum Moderator
- Posts: 8773
- Joined: 30 Aug 2002
- Location: Southern California
- Contact:
Re: Bought a PET - Not working ^^
I asked out younger son whose undergraduate degree is in Koine Greek, and it sounds like he says he could go either way. He calls it "fee" when spelling things in Greek to himself, but hints that rhyming with "fly" is more common. This was through PMs (I think he's at work), so it was pretty brief and details were left out. Anyway, I modified the address-decoding page of the 6502 primer to reflect this.
http://WilsonMinesCo.com/ lots of 6502 resources
The "second front page" is http://wilsonminesco.com/links.html .
What's an additional VIA among friends, anyhow?
The "second front page" is http://wilsonminesco.com/links.html .
What's an additional VIA among friends, anyhow?
Re: Bought a PET - Not working ^^
Commodore_PET wrote:
Hi Mark
So ive tested the voltages on the pins. I have the following readings:
Pin 40: 5.14 V
Pin 4: 0.12V
Pin 6: 5.13 V
Pin 7: 0.93 V
And touching the ROM is ok, its pretty warm but i could probably have my fingers on it indefinitely..
Emmanuel
1024MAK wrote:
Using you multimeter on the 20V DC range (or equivalent), can you please test pin 40 (/RESET) on the 6502. Also pins 4 (/IRQ), 6 (/NMI) and 7 (Sync).
Pin 40: 5.14 V
Pin 4: 0.12V
Pin 6: 5.13 V
Pin 7: 0.93 V
And touching the ROM is ok, its pretty warm but i could probably have my fingers on it indefinitely..
Emmanuel